資産づくりのお手伝い
それが私たちの仕事です。
-
伊勢崎市西久保町売物件- 所在地伊勢崎市西久保町2丁目155番2
- 価格820万円
- 坪単価3万円
- 土地面積903㎡(273.15坪)
- 売物件
- 伊勢崎市
-
伊勢崎市曲沢町売物件- 所在地伊勢崎市曲沢町180-2
- 価格3472.5万円
- 坪単価5万円
- 土地面積2296.09㎡(694.5坪)
- 売物件
- 伊勢崎市
-
伊勢崎市下触町売物件- 所在地伊勢崎市下触町337番2
- 価格1,027.2万円
- 坪単価3万円
- 土地面積1132㎡(342.4坪)
- 売物件
- 伊勢崎市
-
伊勢崎市西久保町2丁目9区画分譲地- 所在地伊勢崎市西久保町2丁目126番5
- 価格910万円
- 坪単価12万円
- 土地面積250.35㎡(75.7坪)
- 自社分譲地
- 伊勢崎市
- 旧赤堀
-
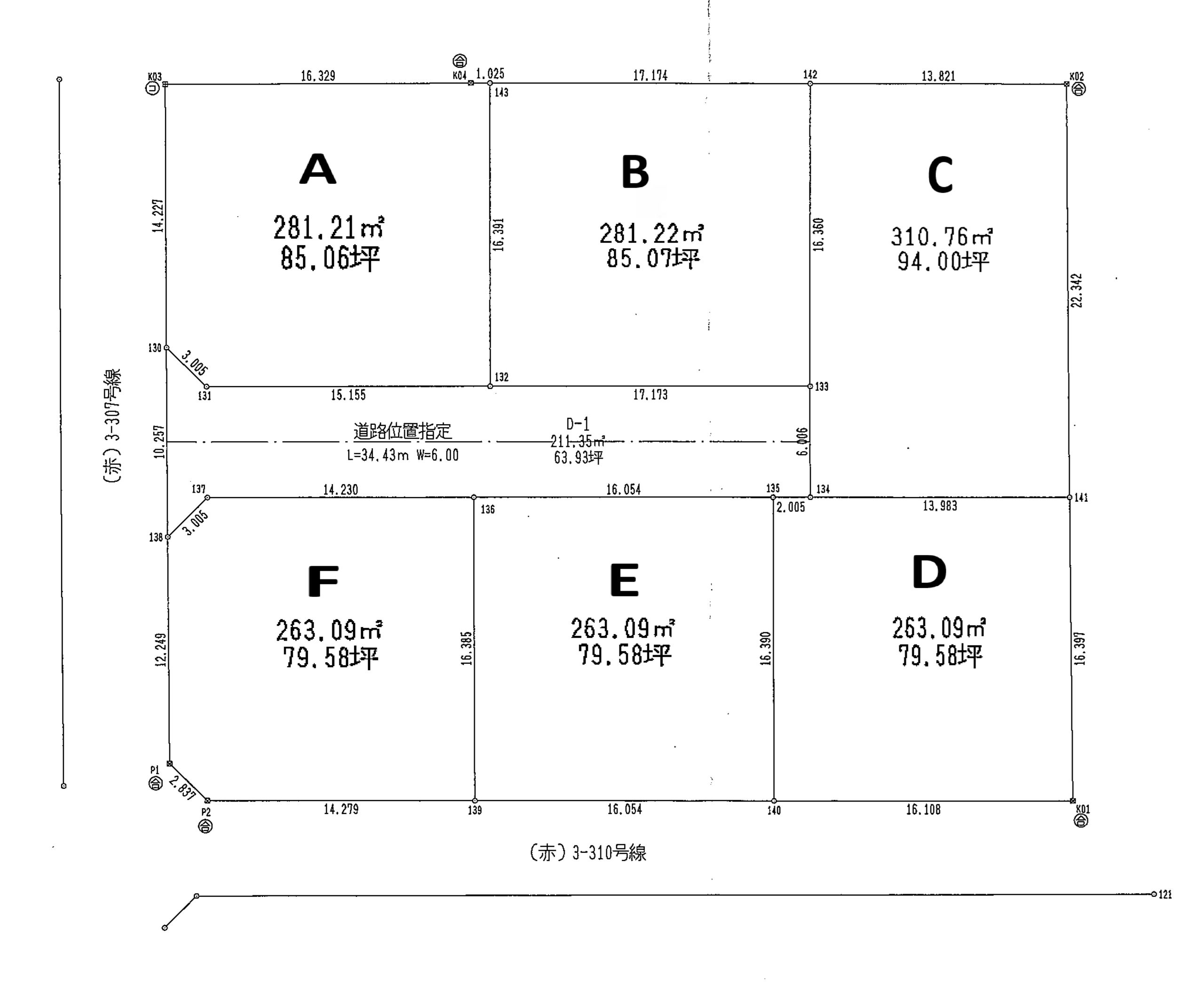
伊勢崎市間野谷町6区画分譲地- 所在地伊勢崎市間野谷町530-75他
- 価格790〜870万円
- 坪単価9〜11万円
- 土地面積263.09〜310.76㎡(79.5〜94.0坪)
- 自社分譲地
- 伊勢崎市
- 旧赤堀
-
伊勢崎市東小保方町5区画分譲地- 所在地伊勢崎市東小保方町2969-6他
- 価格840万円
- 坪単価12.5万円
- 土地面積222.20〜222.45㎡(67.2坪)
- 自社分譲地
- 伊勢崎市
- 旧あづま
-
ユーミンHOUSE C棟- 所在地伊勢崎市香林町1丁目208-12
- 家賃/管理費6万円
- 敷金/礼金60,000円
- 間取り2LDK
- 賃貸物件
- 伊勢崎市
-
伊勢崎市磯町6区画分譲地- 所在地伊勢崎市磯町32番他
- 価格500〜650万円
- 坪単価6.6〜8.9万円
- 土地面積241.23〜260.95㎡(72.9〜78.9坪)
- 自社分譲地
- 伊勢崎市
- 旧赤堀
-
みどり市笠懸町鹿売土地- 所在地みどり市笠懸町96-3他
- 価格850万円
- 土地面積409.02㎡(123.7坪)
- 売物件
- みどり市
大生開発
とは?
とは?
COMPANY
TAISEI KAIHATSU, Inc. in GUNMA
SINCE 1988
大生開発は、赤城山を望む伊勢崎市、桐生市、みどり市の広域をカバーしています。
広域であるからこそ、土地に関わるお悩みごとは数知れません。
土地・不動産に関することなら何でもご相談ください。


